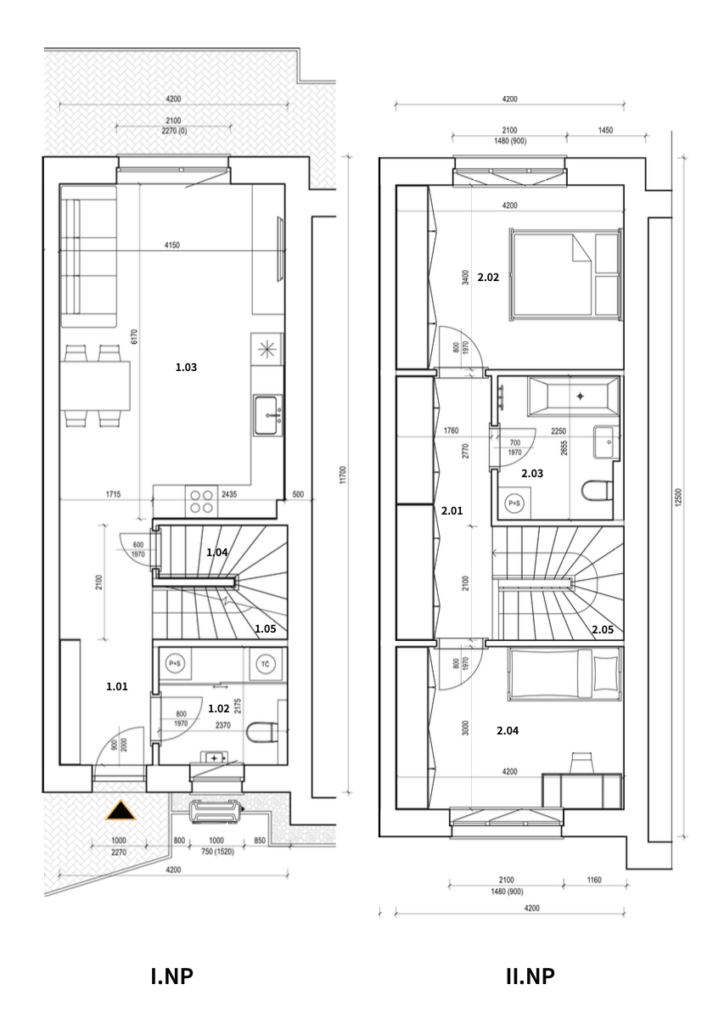
3 IZBOVÝ Byt
- Označnie 9-B
- Výmera 86.68 m2
- Výmera záhrady 134.0 m2
- Výmera pozemku 186.95 m2
- Počet izieb 3
- Počet parkovacích miest 2
- Cena s DPH 232 900 €
- Cena v štandarde s DPH 247 900 €
- Dostupnosť Voľný
Prílohy na stiahnutie:
Galéria
EG-4-9B-1.pdf