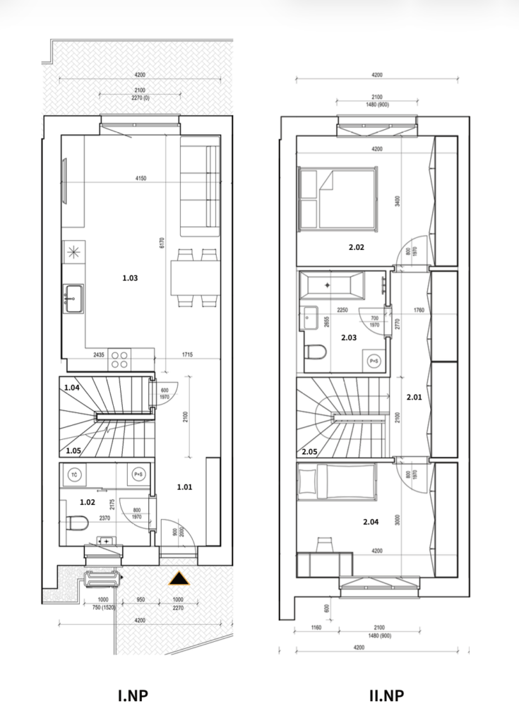
3 IZBOVÝ Byt
- Označnie 9-A
- Výmera 86.68 m2
- Výmera záhrady 134.0 m2
- Výmera pozemku 187.95 m2
- Počet izieb 3
- Počet parkovacích miest 2
- Cena s DPH 234 900 €
- Cena v štandarde s DPH 249 900 €
- Dostupnosť Voľný
Prílohy na stiahnutie:
EG-4-9A-1.pdf