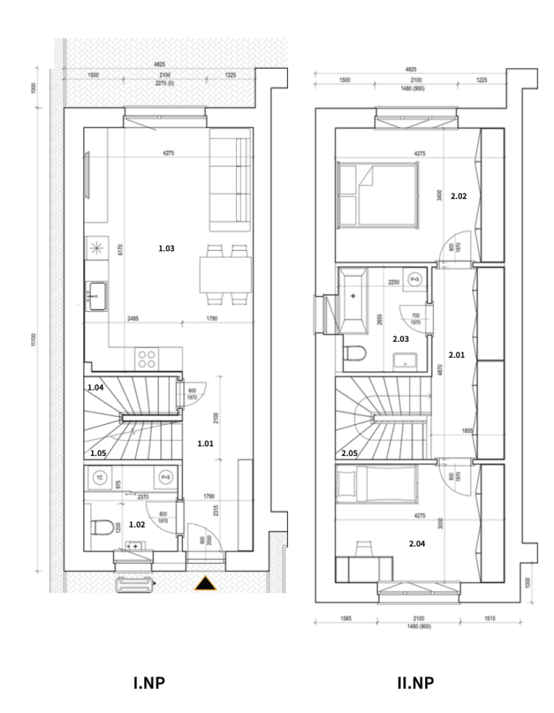
3 IZBOVÝ Byt
- Označnie 11-A
- Výmera 88.66 m2
- Výmera záhrady 291.0 m2
- Výmera pozemku 350.00 m2
- Počet izieb 3
- Počet parkovacích miest 2
- Cena s DPH 246 900 €
- Cena v štandarde s DPH 261 900 €
- Dostupnosť Rezervovaný
Prílohy na stiahnutie:
Galéria
EG-4-11A-1.pdf