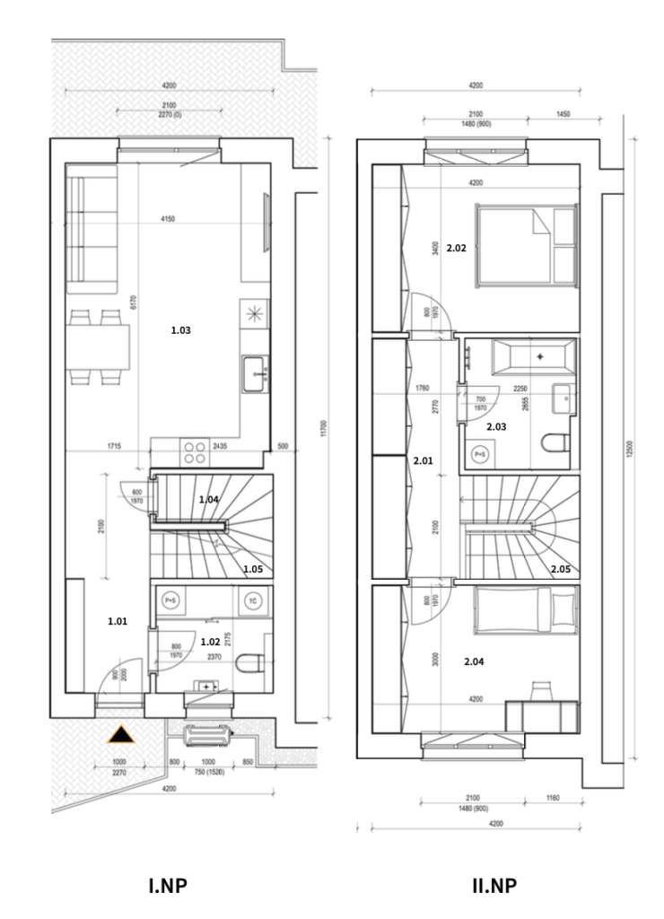
3 IZBOVÝ Byt
- Označnie 10-B
- Výmera 86.68 m2
- Výmera záhrady 134.5 m2
- Výmera pozemku 187.45 m2
- Počet izieb 3
- Počet parkovacích miest 2
- Cena s DPH 229 900 €
- Cena v štandarde s DPH 244 900 €
- Dostupnosť Predaný
Prílohy na stiahnutie:
Galéria
EG-4-10B-1.pdf