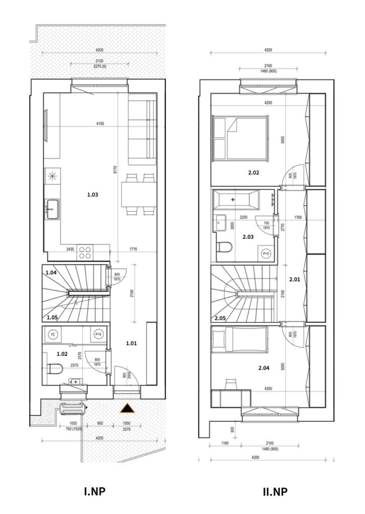
3 IZBOVÝ Byt
- Označnie 10-A
- Výmera 86.68 m2
- Výmera záhrady 134.5 m2
- Výmera pozemku 188.45 m2
- Počet izieb 3
- Počet parkovacích miest 2
- Cena s DPH 229 900 €
- Cena v štandarde s DPH 244 900 €
- Dostupnosť Rezervovaný
Prílohy na stiahnutie:
Galéria
EG-4-10A-1.pdf